£975,000

Property Features

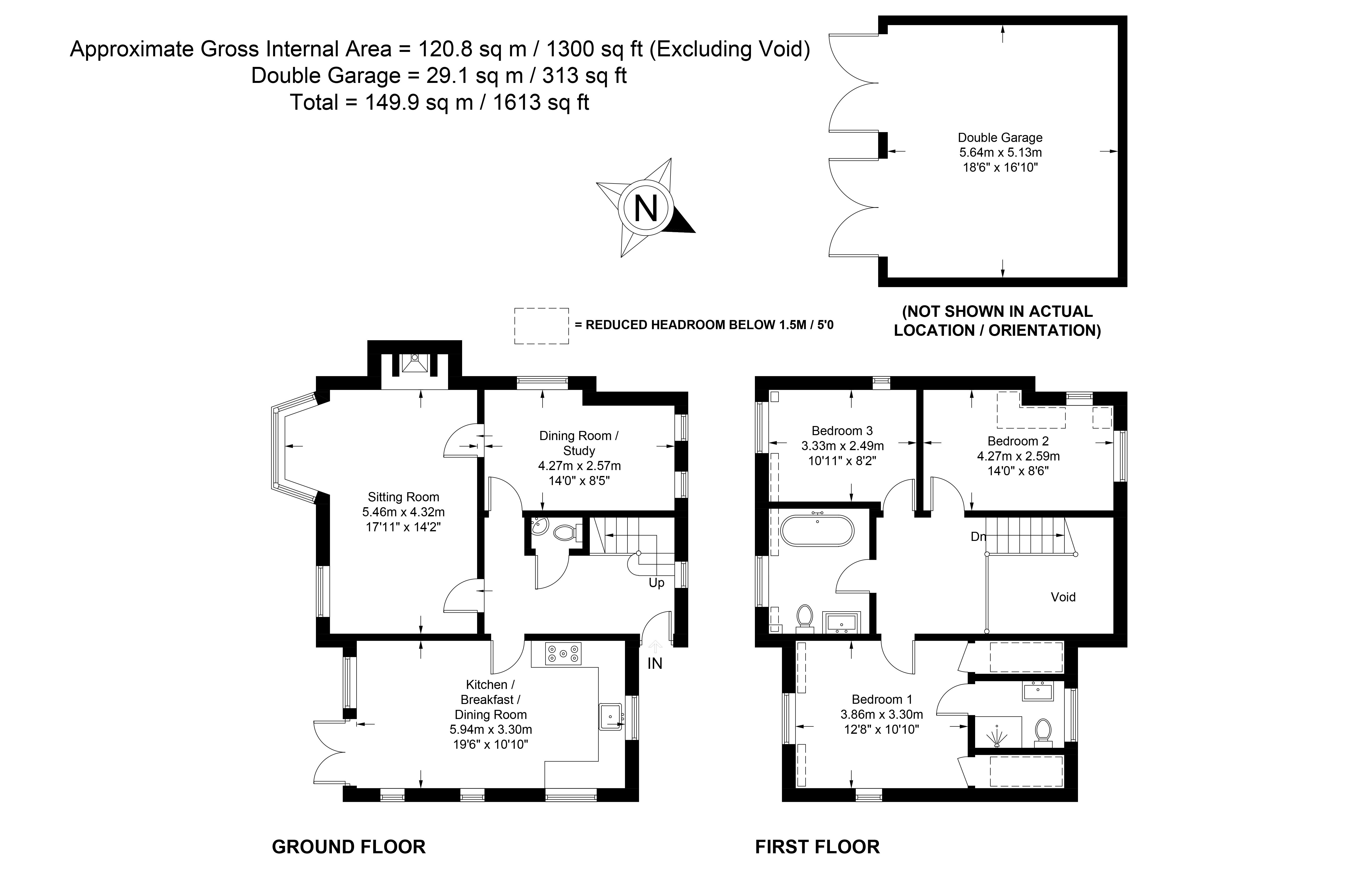
  • Hall, Cloakroom
  • Sitting room
  • Kitchen/Dining room
  • Study
  • Master suite of Bedroom and Shower room
  • Two Further Bedrooms
  • Bathroom
  • Oil fired Central Heating
  • Barn style Double Garage, Alitex Greenhouse
  • Gardens of 0.25 acres

Brief Description

Adjoining National Trust woodland in a tranquil rural setting, a light and bright detached period cottage, carefully extended and restored to achieve a high energy efficiency.

Main Description

SITUATION:
The property is situated on a private no-through lane about mile from the centre of the delightful village of Kirdford. Along with two pubs and the parish church, Kirdford also boasts an award winning village store and café which caters for everyday needs whilst more comprehensive facilities can be found at nearby Petworth, Billingshurst and Haslemere. Main line stations at Billingshurst and Haslemere provide regular services into Victoria and Waterloo respectively. There is an excellent choice of local schools including the nearby Kirdford and Plaistow Primary School and the Weald community School at Billingshurst. In the private sector Christ's Hospital, Cranleigh, Charterhouse, Farlington, Seaford College, St Catherine's and Pennthorpe are within easy reach. The beautiful Sussex countryside is literally on the doorstep with miles of footpaths and bridleways whilst recreational attractions include golf at Chiddingfold, Cowdray Park and Goodwood, polo at Midhurst and Hurtwood Park, racing at Goodwood and Fontwell Park and sailing at Chichester.

DESCRIPTION:
With part oak boarded elevations of brick under a clay tiled roof and a leaded bay window, this delightful period gem is thought to date from the 1780's but is not Listed. It has undergone major extension and complete renovation in recent years and now offers a rare combination of a character cottage that is as energy efficient as any modern home. Features include oak floors and joinery, exposed beams and an inglenook fireplace with log burner. There is underfloor heating on the ground floor, all windows are double glazed and there is a recent external central heating boiler.

OUTSIDE:
Double gates open to a gravelled driveway and leading to the cottage and to the BARN STYLE DETACHED DOUBLE GARAGE The fenced, mature gardens surround the cottage with paved stone terraces, lawns interspersed with established trees and shrubs and well stocked shrub borders creating a secluded and tranquil setting. There is also a high quality ALITEX GREENHOUSE.

SERVICES: Mains water,electricity. and drainage. Oil fired central heating.

EPC Rating: band C

COUNCIL TAX: Band F. Chichester District Council.



Viewing

Please contact us on 01798 342242 if you wish to arrange a viewing appointment for this property, or require further information.

Energy Performance Certificate
Click here to view the Energy Efficiency Rating and Environmental Impact Rating for this property.


Disclaimer

Barrington & Company endeavour to maintain accurate depictions of properties in Virtual Tours, Floor Plans and descriptions, however, these are intended only as a guide and purchasers must satisfy themselves by personal inspection.
IE8 Alert! Cookie Alert!

To get the best possible experience using our website we recommend you upgrade to a modern web browser. More info