£500,000

Property Features

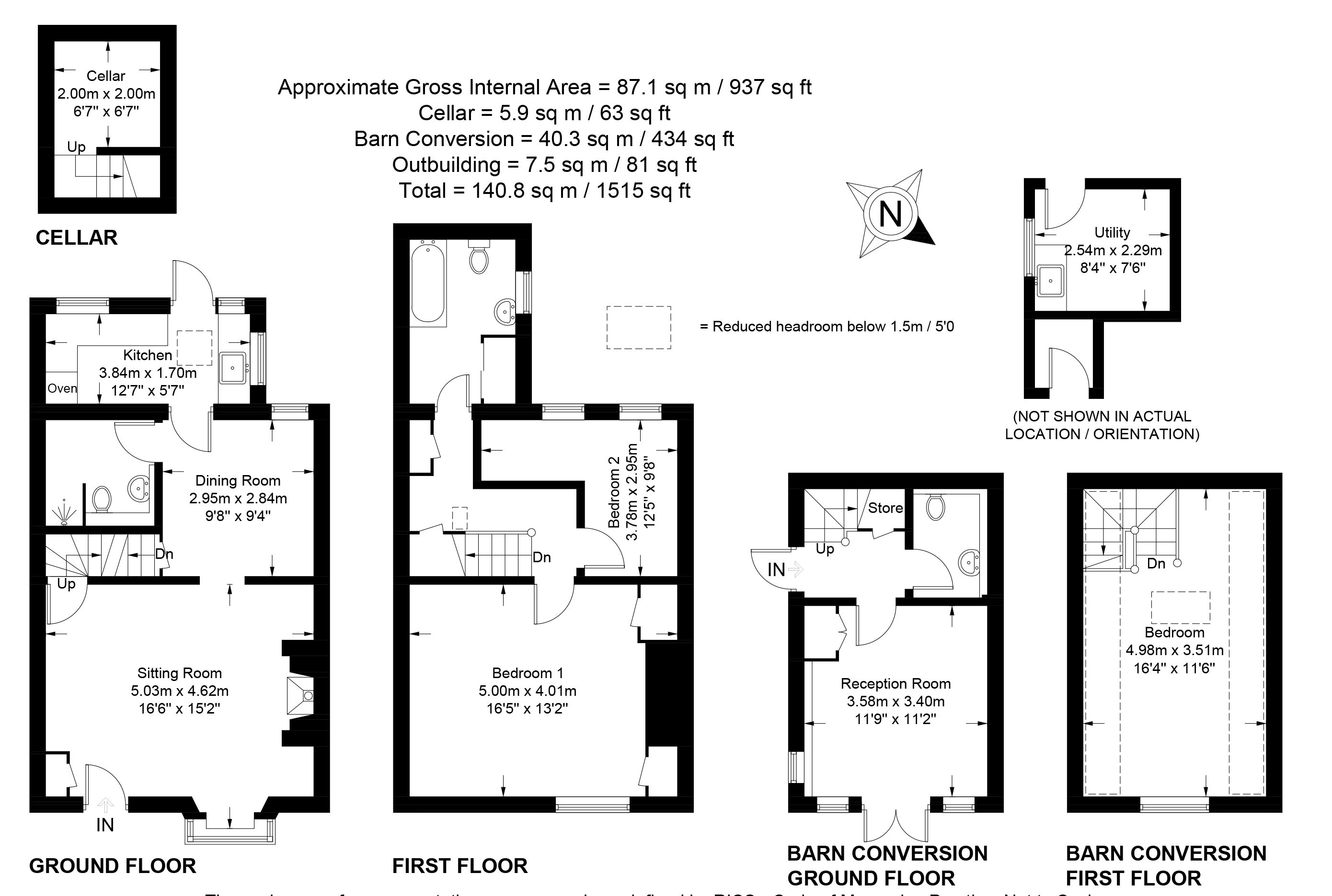
  • Sitting room
  • Dining room
  • Kitchen
  • Utility room
  • Cellar
  • 2 bedrooms in cottage
  • Bathroom, Shower room
  • Detached Barn conversion with Sitting room, Bedroom and Cloakroom
  • Garden Store
  • Courtyard Garden

Brief Description

In need of updating. A Grade II listed terraced cottage with detached barn conversion, further outbuilding and courtyard garden.

Main Description

SITUATION.
The property is situated in the centre of the village within a short walk of the village hall, Parish Church and Horse Guards Pub. There is a bus stop a few hundred yards away on the A272. Petworth (1 mile) is an attractive old market town perhaps best known for the National Trust owned Petworth House with its beautiful 750 acre parkland. The town also benefits from a regular farmers market, first class deli and shops catering for most everyday needs. There are annual Petworth music and literary festivals and a range of vibrant societies. Sporting activities include golf at Cowdray Park and horse and motor racing at Goodwood. More comprehensive shopping facilities, including major supermarkets, can be found in Chichester (16 miles) as well as the renowned Festival Theatre. Communications with London are surprisingly easy with mainline stations at Haslemere (11 miles, Waterloo 60 minutes)

DESCRIPTION.
The property comprises a Grade II listed mid-terraced cottage with rendered elevations of stone and brick under a clay tiled roof. The front door opens to a sitting room with open fireplace and attractive bay window. This leads through to the dining room off which is a door to the cellar and an adjacent shower room. The kitchen is fitted with a range of wall and floor units. From the sitting room an enclosed staircase rises to the first floor landing with one large double bedroom, an L shaped single bedroom and the bathroom.

OUTSIDE.
To the front of the cottage is a small garden area enclosed by a picket fence. A shared pedestrian right of access leads from the southern end of the terrace to the rear of the cottage. The kitchen door opens to this pathway across which is an attached stone and tiled outbuilding housing the Utility room and garden store. Behind this building is the detached Barn providing ancillary accommodation and beyond this is the brick paved courtyard garden.

EPC: Band E.

SERVICES: Mains Water, Electricity and Drainage. Electric heating.

COUNCIL TAX: Band E. Chichester District Council


Viewing

Please contact us on 01798 342242 if you wish to arrange a viewing appointment for this property, or require further information.

Energy Performance Certificate
Click here to view the Energy Efficiency Rating and Environmental Impact Rating for this property.


Disclaimer

Barrington & Company endeavour to maintain accurate depictions of properties in Virtual Tours, Floor Plans and descriptions, however, these are intended only as a guide and purchasers must satisfy themselves by personal inspection.
IE8 Alert! Cookie Alert!

To get the best possible experience using our website we recommend you upgrade to a modern web browser. More info