£345,000

Property Features

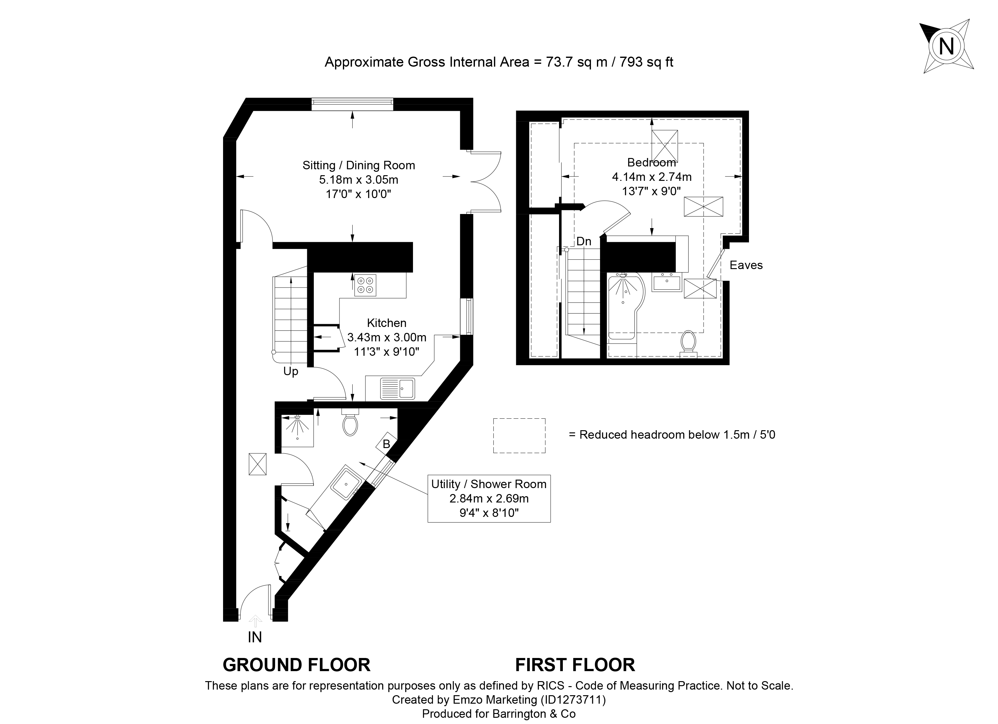
  • Hall
  • Sitting/Dining room
  • Kitchen
  • Utility/Shower room
  • Bedroom
  • Bathroom
  • Gas central heating
  • Private south facing garden

Brief Description

An attached Victorian cottage, quietly situated and tucked away with private garden.

Main Description

SITUATION:
The cottage is situated just off Lombard Street and close to all the shops and amenities of the town centre. The attractive old market town of Petworth is probably best known for the National Trust owned Petworth House with its beautiful 750 acre parkland in the heart of the South Downs National Park. It also boasts a regular farmers market, first class deli and shops catering for most everyday needs. State schools in the area include Petworth Primary and Midhurst Rother College. Private schools include Seaford College, Dorset House and Conifers. Sporting activities include golf at Cowdray Park and horse and motor racing at Goodwood. Communications with London are surprisingly easy with mainline stations at Haslemere (approx.10 miles, Waterloo 60 minutes) and Pulborough (approx. 5 miles, Victoria 70 minutes). The A3 (M) is within a 14 mile drive.

DESCRIPTION:
The property (which is not Listed) comprises an attached cottage, probably dating from the late 1800's with elevations of brick under a clay tiled roof. Features include double glazed doors and windows and gas central heating. The entrance is via a communal hall which also serves the four apartments of Clifford House. A front door leads to an entrance hall and on to a double aspect sitting/dining room with glazed double doors to the garden and a wall mounted gas fire. The well fitted kitchen has integral appliances and ample worktops whilst the utility/shower room has space for washing machine. From the hall stairs lead to the first floor with a double bedroom and ensuite bathroom, both with eaves storage cupboards. Panning consent was granted in 2020 (now lapsed) for a single storey extension.

OUTSIDE: The cottage has a private south facing walled garden mainly laid to lawn with a raised terrace area.

TENURE: Leasehold and share of Freehold.

SERVICES: Mains water, gas, electricity and drainage. Gas fired central heating.

COUNCIL TAX: BAND C; Chichester District Council Tel: 01243 785166



Viewing

Please contact us on 01798 342242 if you wish to arrange a viewing appointment for this property, or require further information.

Energy Performance Certificate
Click here to view the Energy Efficiency Rating and Environmental Impact Rating for this property.


Disclaimer

Barrington & Company endeavour to maintain accurate depictions of properties in Virtual Tours, Floor Plans and descriptions, however, these are intended only as a guide and purchasers must satisfy themselves by personal inspection.
IE8 Alert! Cookie Alert!

To get the best possible experience using our website we recommend you upgrade to a modern web browser. More info